Espace propriétaire
fr
Se connecter
Se connecter

Votre recherche

Exclusivité
Voulx (77940)

4 pièces - 114,67 m²

Immeuble de rapport - Voulx - RENTABILITÉ

159 500 €
Ref : PV4040
WhatsApp
A propos de ce bien

Idéal investisseur ! Situé en plein centre de Voulx, à proximité immédiate des commerces et des écoles, cet immeuble se compose de 3 logements :

  • 2 appartements F2
  • 1 studio au dernier étage

Situation locative

  • 1 logement actuellement loué : 420 € HC
  • Potentiel locatif total si on applique les loyers récemment pratiqués : 1 240 € / mois HC
  • Soit 14 880 € / an
  • Taxe foncière 1615€

Caractéristiques

  • Chauffage électrique individuel
  • Raccordement tout-à-l’égout
  • Distribution simple et exploitable

Atouts investissement

  • Rentabilité attractive
  • Possibilité d’augmentation des loyers
  • Secteur locatif stable

Produit idéal pour :

  • Investisseur débutant ou confirmé
  • Stratégie déficit foncier / valorisation
  • Création de cash-flow à moyen terme

Les informations sur les risques auxquels ce bien est exposé sont disponibles sur le site Géorisques
Descriptif de ce bien
Général
Code postal 77940
Nombre de chambre(s) 2
Nombre de pièces 4
Nombre de niveaux 2
Détails
Nb de salle de bains 1
Nb de salle d'eau 2
Cuisine Américaine
Mode de chauffage Electrique
Type de chauffage Radiateur
Format de chauffage Individuel
Murs mitoyens 2
Composition
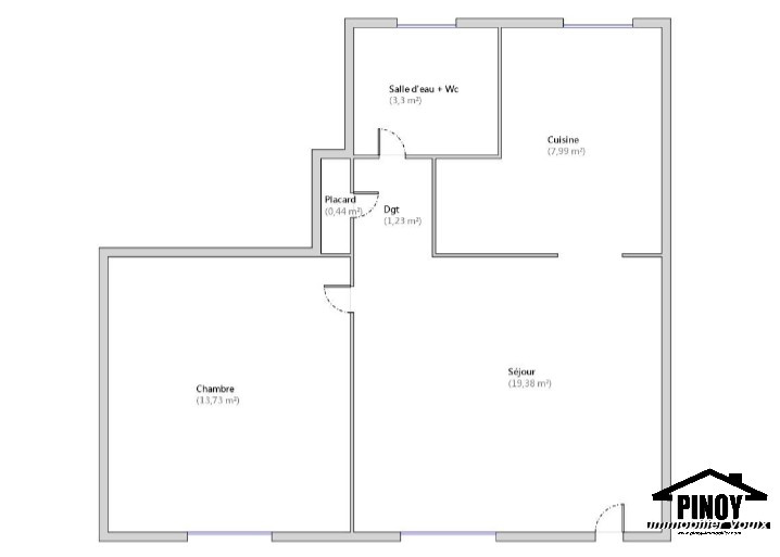
Rez de chaussée
salon/sejour 19.38 m²

cuisine 7.99 m²

salle d'eau 3.30 m²

Placards 0.44 m²

Dégagement 1.23 m²

chambre 13.73 m²

Dégagement 1.33 m²

Etage 1
salon/sejour 19.60 m²

cuisine 8.96 m²

chambre 9.61 m²

salle de bain 5.09 m²

Dégagement 1.33 m²

Etage 2
salon/sejour 20.62 m²

salle d'eau 3.39 m²

Financier
Prix de vente 159 500 €
Les honoraires d'agence seront intégralement à la charge du vendeur  
Taxe foncière annuelle 1 615 €
Energie
DPE GES
Copropriété
Copropriété NON
Autour du bien
  • Commerces et santé
  • Loisirs
  • Ecoles
  • Transports
  • Pratique
Contacter pour ce bien
L'agence
Téléphone 01 64 70 71 65
Adresse
33 Grande Rue 77940 Voulx

* Champ obligatoire

Les informations recueillies sur ce formulaire sont enregistrées dans un fichier informatisé par La Boite Immo agissant comme Sous-traitant du traitement pour la gestion de la clientèle/prospects de l'Agence / du Réseau qui reste Responsable du Traitement de vos Données personnelles. La base légale du traitement repose sur l'intérêt légitime de l'Agence / du Réseau. Elles sont conservées jusqu'à demande de suppression et sont destinées à l'Agence / au Réseau. Conformément à la loi « informatique et libertés », vous disposez des droits d’accès, de rectification, d’effacement, d’opposition, de limitation et de portabilité de vos données. Vous pouvez retirer votre consentement à tout moment en contactant directement l’Agence / Le Réseau. Consultez le site https://cnil.fr/fr pour plus d’informations sur vos droits. Si vous estimez, après avoir contacté l'Agence / le Réseau, que vos droits « Informatique et Libertés » ne sont pas respectés, vous pouvez adresser une réclamation à la CNIL. Nous vous informons de l’existence de la liste d'opposition au démarchage téléphonique « Bloctel », sur laquelle vous pouvez vous inscrire ici : https://www.bloctel.gouv.fr Dans le cadre de la protection des Données personnelles, nous vous invitons à ne pas inscrire de Données sensibles dans le champ de saisie libre.
Ce site est protégé par reCAPTCHA, les Politiques de Confidentialité et les Conditions d'Utilisation de Google s'appliquent.

Découvrir nos outils