Espace propriétaire
fr
Se connecter
Se connecter

Votre recherche

Vendu
Voulx (77940)

5 pièces - 141 m²

Maison neuve de 2023 avec jardin à #VOULX

Ref : PV3838
WhatsApp
A propos de ce bien

Maison neuve 2023 (frais de notaire réduits à 6.700 € environ), garantie décennale et dommage ouvrage. Au rez de chaussée : Hall d'entrée, cuisine ouverte sur le salon, une chambre, salle d'eau, cellier. A l'étage : Mezzanine, 3 chambres, salle de bains, dressing. Jardin. L'agence Pinoy immobilier, 33 Grande rue - 77940 VOULX 01.64.70.71.65 vous accompagne à chaque étape de votre projet. 


Les informations sur les risques auxquels ce bien est exposé sont disponibles sur le site Géorisques
Descriptif de ce bien
Général
Code postal 77940
surface terrain 825 m²
Nombre de chambre(s) 4
Nombre de pièces 5
Nombre de niveaux 1
Détails
Nb de salle de bains 1
Nb de salle d'eau 1
Cuisine Américaine
Mode de chauffage Electrique
Type de chauffage Radiateur
Format de chauffage Individuel
Année de construction 2023
Quartier Voulx
Composition
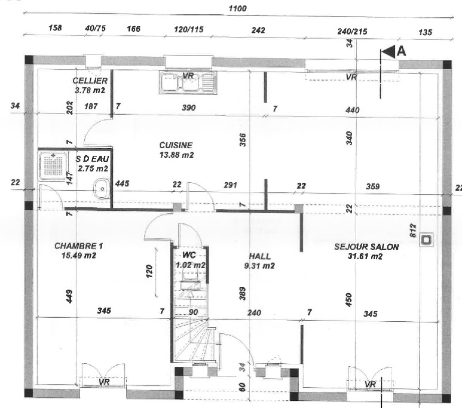
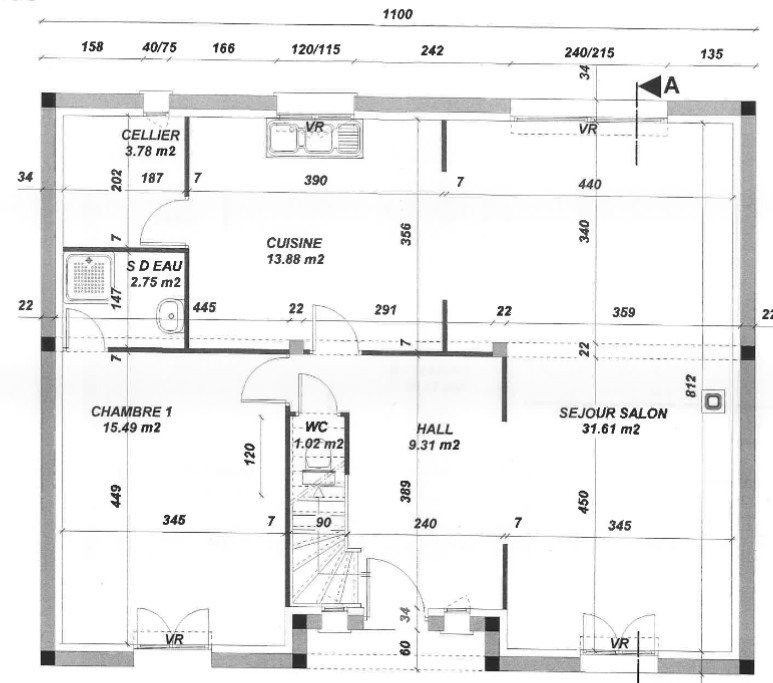
Rez de chaussée
entrée 9.31 m²

pièce à vivre 45 m²

chambre 15.49 m²

cellier 3.78 m²

salle d'eau 2.75 m²

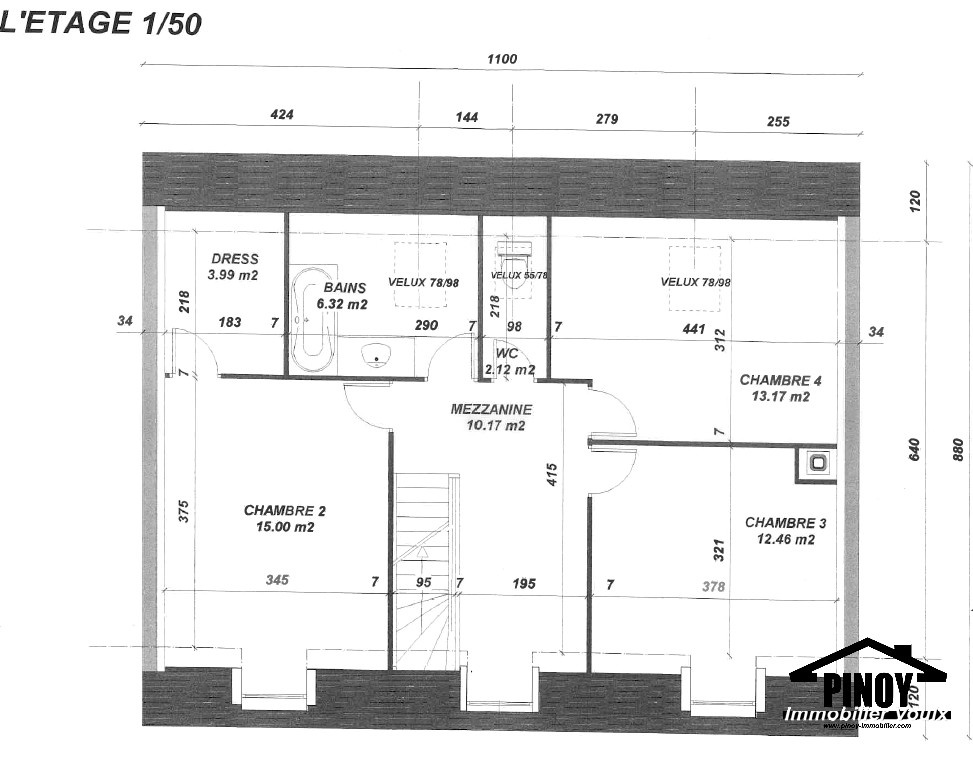
Etage 1
mezzanine 10.17 m²

chambre 15 m²

chambre 12.46 m²

chambre 13.17 m²

salle de bain 6.32 m²

dressing 3.99 m²

Financier
Les honoraires d'agence seront intégralement à la charge du vendeur  
Energie
DPE GES
Copropriété
Copropriété NON
Autour du bien
  • Commerces et santé
  • Loisirs
  • Ecoles
  • Transports
  • Pratique
Contacter pour ce bien
L'agence
Téléphone 01 64 70 71 65
Adresse
33 Grande Rue 77940 Voulx

* Champ obligatoire

Les informations recueillies sur ce formulaire sont enregistrées dans un fichier informatisé par La Boite Immo agissant comme Sous-traitant du traitement pour la gestion de la clientèle/prospects de l'Agence / du Réseau qui reste Responsable du Traitement de vos Données personnelles. La base légale du traitement repose sur l'intérêt légitime de l'Agence / du Réseau. Elles sont conservées jusqu'à demande de suppression et sont destinées à l'Agence / au Réseau. Conformément à la loi « informatique et libertés », vous disposez des droits d’accès, de rectification, d’effacement, d’opposition, de limitation et de portabilité de vos données. Vous pouvez retirer votre consentement à tout moment en contactant directement l’Agence / Le Réseau. Consultez le site https://cnil.fr/fr pour plus d’informations sur vos droits. Si vous estimez, après avoir contacté l'Agence / le Réseau, que vos droits « Informatique et Libertés » ne sont pas respectés, vous pouvez adresser une réclamation à la CNIL. Nous vous informons de l’existence de la liste d'opposition au démarchage téléphonique « Bloctel », sur laquelle vous pouvez vous inscrire ici : https://www.bloctel.gouv.fr Dans le cadre de la protection des Données personnelles, nous vous invitons à ne pas inscrire de Données sensibles dans le champ de saisie libre.
Ce site est protégé par reCAPTCHA, les Politiques de Confidentialité et les Conditions d'Utilisation de Google s'appliquent.

Découvrir nos outils