Espace propriétaire
fr
Se connecter
Se connecter

Votre recherche

Flagy (77940)

5 pièces - 155 m²

Charmante maison ancienne avec grange et jardin clos – Flagy, vallée de l’Orvanne

298 000 €
Ref : PV4032
WhatsApp
A propos de ce bien

Au cœur du village fleuri de Flagy, dans le cadre préservé et recherché de la vallée de l’Orvanne, découvrez cette charmante maison ancienne pleine de caractère, offrant de beaux volumes et un agréable jardin clos de murs à l’abri des regards.

La maison dispose au rez-de-chaussée d'une spacieuse pièce de vie avec cheminée insert, d'une salle à manger, d'une cuisine aménagée et équipée (lave-vaisselle, réfrigérateur combiné, plaque de cuisson 5 feux gaz), salle de bains.

À un palier dessert trois grandes chambres de 20 m², 14,26 m² et 23 m², dont une avec dressing, ainsi qu’une seconde salle de bains.

À l’extérieur, le jardin clos de murs offre un cadre intimiste et verdoyant.

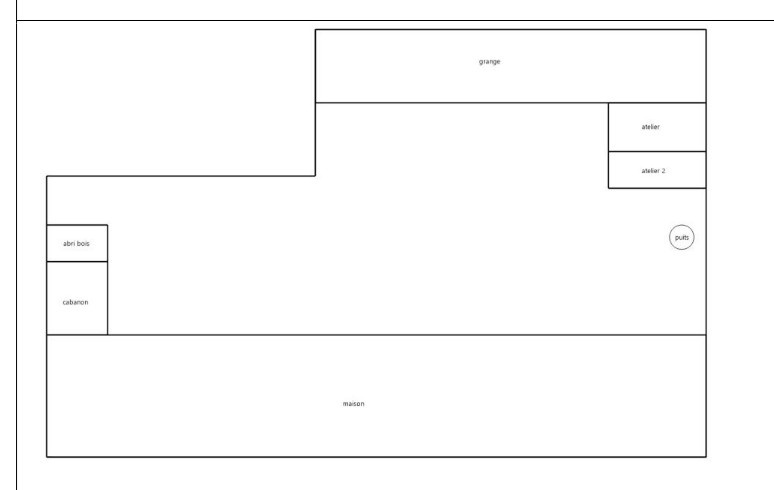
La maison dispose également de belles dépendances, très recherchées dans le secteur :

  • une très belle grange de 84 m² avec sol béton, idéale pour garage, stockage ou projet d’aménagement,

  • une double cave voûtée sur la totalité

  • Puits et petites dépendances pouvant servir d’atelier, de chenil ou d’espace de rangement.

Un ensemble plein de charme dans un environnement calme et authentique. Information importante : Consommations énergétiques gaz et edf 1.775€/an

L'agence Pinoy immobilier vous accompagne à chaque étape de votre projet immobilier.


Les informations sur les risques auxquels ce bien est exposé sont disponibles sur le site Géorisques
Descriptif de ce bien
Général
Code postal 77940
surface terrain 600 m²
Nombre de chambre(s) 3
Nombre de pièces 5
Nombre de niveaux 1
Détails
Nb de salle de bains 1
Nb de salle d'eau 1
Cuisine Séparée
Type de cuisine Equipée
Mode de chauffage Bois
Type de chauffage Cheminée
Format de chauffage Individuel
Murs mitoyens 2
Nombre de garage 3
Cave OUI
Surface cave (m²) 71
Composition
Rez de chaussée
salon/sejour 33.40 m²

Salle à manger 21.70 m²

Dégagement 1.26 m²

cuisine 11.73 m²

salle de bain 5.08 m²

atelier 15.80 m²

Grange 84 m²

Etage 1
Palier 14.69 m²

chambre 20.70 m²

Dégagement 3.28 m²

chambre 14.26 m²

salle d'eau 4.23 m²

chambre 23.28 m²

Etage -1
cave 71 m²

Financier
Prix de vente 298 000 €
Les honoraires d'agence seront intégralement à la charge du vendeur  
Taxe foncière annuelle 2 201 €
Energie
DPE GES
Copropriété
Copropriété NON
Autour du bien
  • Commerces et santé
  • Loisirs
  • Ecoles
  • Transports
  • Pratique
Contacter pour ce bien
L'agence
Téléphone 01 64 70 71 65
Adresse
33 Grande Rue 77940 Voulx

* Champ obligatoire

Les informations recueillies sur ce formulaire sont enregistrées dans un fichier informatisé par La Boite Immo agissant comme Sous-traitant du traitement pour la gestion de la clientèle/prospects de l'Agence / du Réseau qui reste Responsable du Traitement de vos Données personnelles. La base légale du traitement repose sur l'intérêt légitime de l'Agence / du Réseau. Elles sont conservées jusqu'à demande de suppression et sont destinées à l'Agence / au Réseau. Conformément à la loi « informatique et libertés », vous disposez des droits d’accès, de rectification, d’effacement, d’opposition, de limitation et de portabilité de vos données. Vous pouvez retirer votre consentement à tout moment en contactant directement l’Agence / Le Réseau. Consultez le site https://cnil.fr/fr pour plus d’informations sur vos droits. Si vous estimez, après avoir contacté l'Agence / le Réseau, que vos droits « Informatique et Libertés » ne sont pas respectés, vous pouvez adresser une réclamation à la CNIL. Nous vous informons de l’existence de la liste d'opposition au démarchage téléphonique « Bloctel », sur laquelle vous pouvez vous inscrire ici : https://www.bloctel.gouv.fr Dans le cadre de la protection des Données personnelles, nous vous invitons à ne pas inscrire de Données sensibles dans le champ de saisie libre.
Ce site est protégé par reCAPTCHA, les Politiques de Confidentialité et les Conditions d'Utilisation de Google s'appliquent.

Découvrir nos outils