Espace propriétaire
fr
Se connecter
Se connecter

Votre recherche

Vendu
Lorrez-le-Bocage-Préaux (77710)

5 pièces - 125 m²

Maison 4 chambres, garage et jardin à #LORREZ LE BOCAGE

Ref : PV3775
WhatsApp
A propos de ce bien

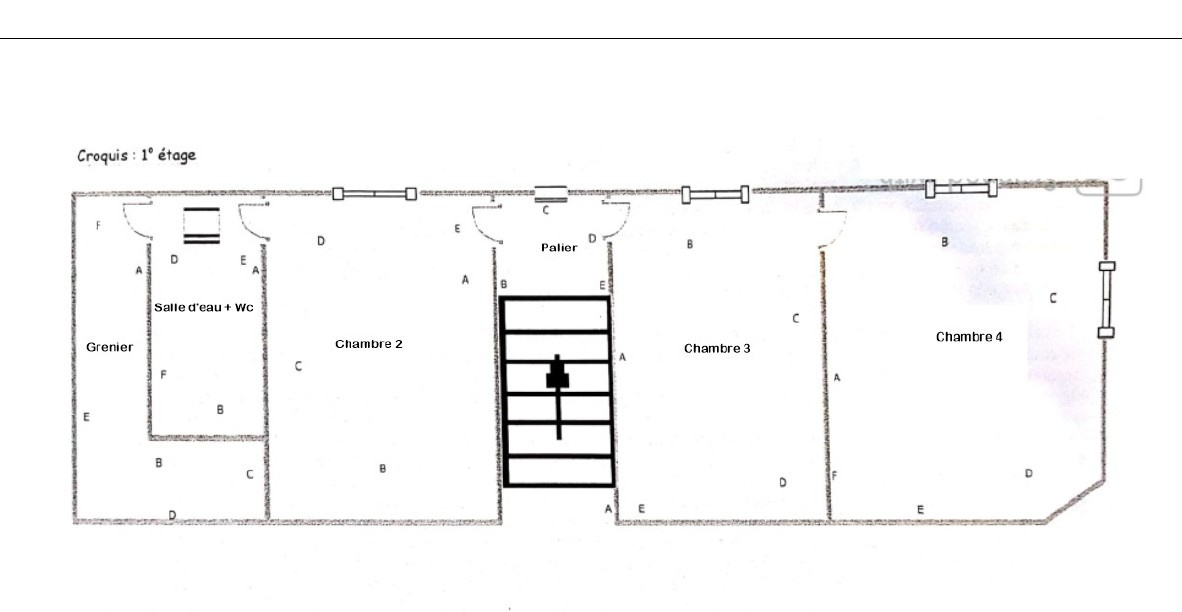
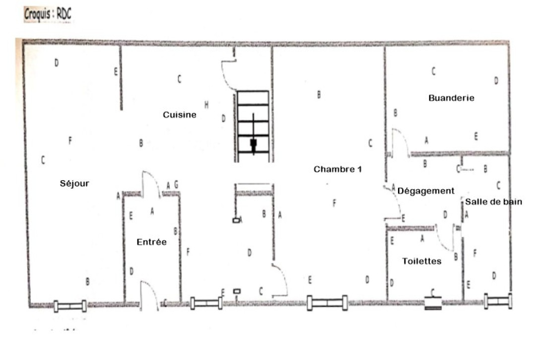
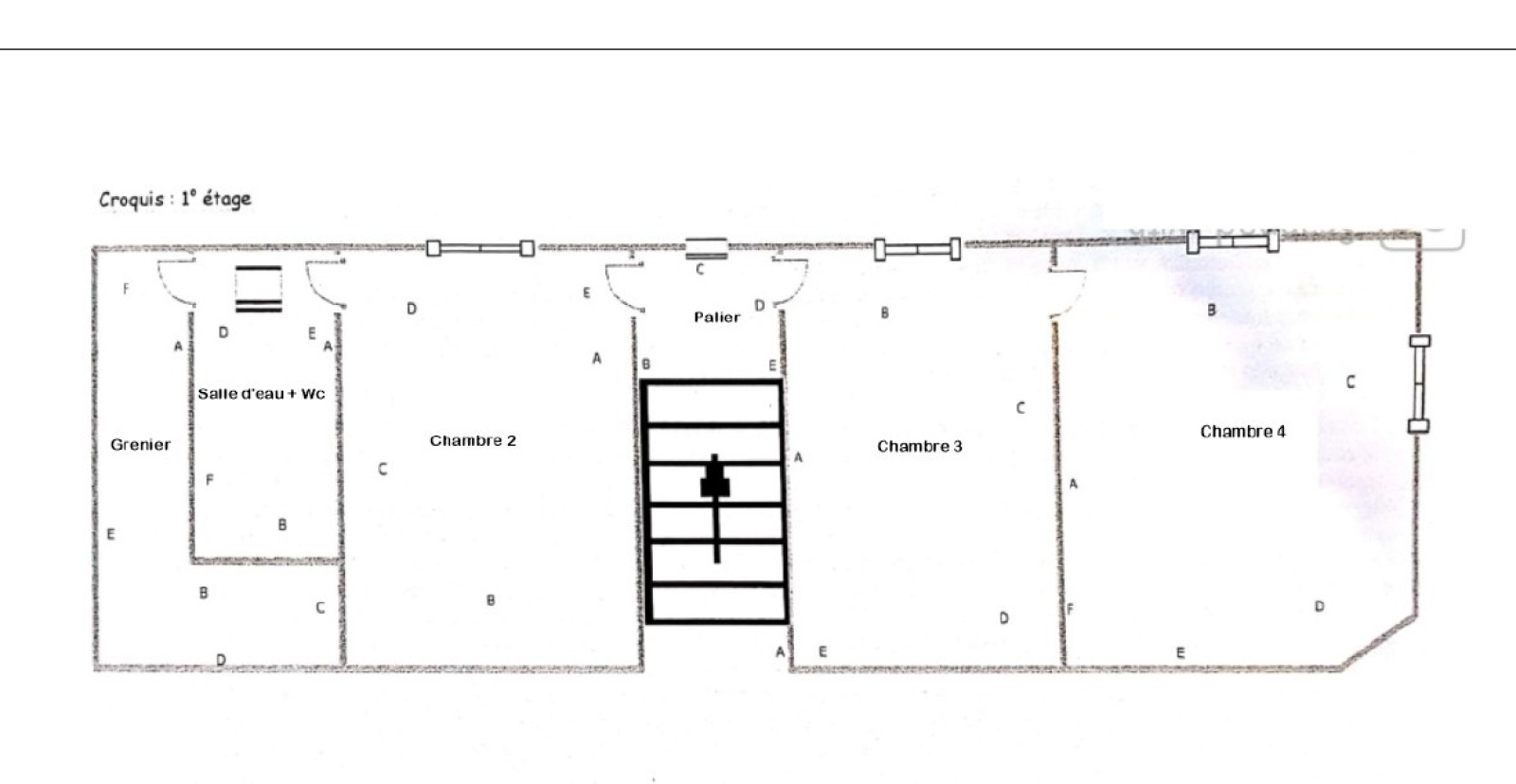
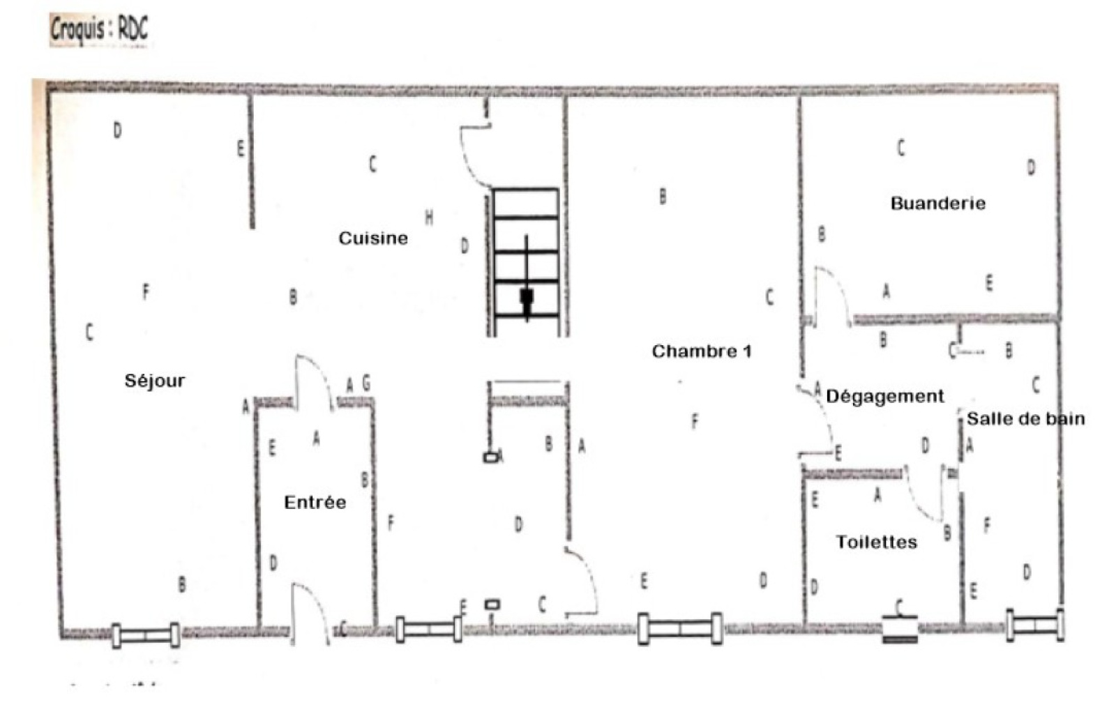
L'agence Pinoy immobilier, 33 Grande rue - 77940 VOULX - 01.64.70.71.65 vous propose cette maison, en vente, en exclusivité, très bien située sur la commune de #Lorrez le Bocage, à proximité des commerces, écoles, et collège. Au rez de chaussée : Entrée, pièce à vivre avec cuisine aménagée ouverte sur le salon, 1 chambre, salle de bains, buanderie et chaufferie, dégagement. A l'étage : un palier dessert 3 autres chambres de belles superficies et une autre salle d'eau. Grenier. Un grand garage attenant permet de disposer d'un bel espace de rangements. Cave. Jardin devant la maison.

Descriptif de ce bien
Général
Code postal 77710
surface terrain 299 m²
Nombre de chambre(s) 4
Nombre de pièces 5
Nombre de niveaux 2
Détails
Nb de salle de bains 1
Nb de salle d'eau 1
Cuisine Américaine
Mode de chauffage Fioul
Type de chauffage Radiateur
Format de chauffage Individuel
Murs mitoyens 1
Nombre de garage 1
Composition
Rez de chaussée
entrée 1.86 m²

pièce à vivre 33 m²

salle de bain 4.65 m²

Dégagement 3.04 m²

buanderie

chambre 15.50 m²

garage 40 m²

Etage 1
Palier 1.05 m²

chambre 18.04 m²

chambre 15.61 m²

chambre 15.60 m²

salle d'eau 6.74 m²

Etage 2
Grenier 15.24 m²

Financier
Les honoraires d'agence seront intégralement à la charge du vendeur  
Energie
DPE GES
Copropriété
Copropriété NON
Autour du bien
  • Commerces et santé
  • Loisirs
  • Ecoles
  • Transports
  • Pratique
Contacter pour ce bien
L'agence
Téléphone 01 64 70 71 65
Adresse
33 Grande Rue 77940 Voulx

* Champ obligatoire

Les informations recueillies sur ce formulaire sont enregistrées dans un fichier informatisé par La Boite Immo agissant comme Sous-traitant du traitement pour la gestion de la clientèle/prospects de l'Agence / du Réseau qui reste Responsable du Traitement de vos Données personnelles. La base légale du traitement repose sur l'intérêt légitime de l'Agence / du Réseau. Elles sont conservées jusqu'à demande de suppression et sont destinées à l'Agence / au Réseau. Conformément à la loi « informatique et libertés », vous disposez des droits d’accès, de rectification, d’effacement, d’opposition, de limitation et de portabilité de vos données. Vous pouvez retirer votre consentement à tout moment en contactant directement l’Agence / Le Réseau. Consultez le site https://cnil.fr/fr pour plus d’informations sur vos droits. Si vous estimez, après avoir contacté l'Agence / le Réseau, que vos droits « Informatique et Libertés » ne sont pas respectés, vous pouvez adresser une réclamation à la CNIL. Nous vous informons de l’existence de la liste d'opposition au démarchage téléphonique « Bloctel », sur laquelle vous pouvez vous inscrire ici : https://www.bloctel.gouv.fr Dans le cadre de la protection des Données personnelles, nous vous invitons à ne pas inscrire de Données sensibles dans le champ de saisie libre.
Ce site est protégé par reCAPTCHA, les Politiques de Confidentialité et les Conditions d'Utilisation de Google s'appliquent.

Découvrir nos outils