Description de l'offre
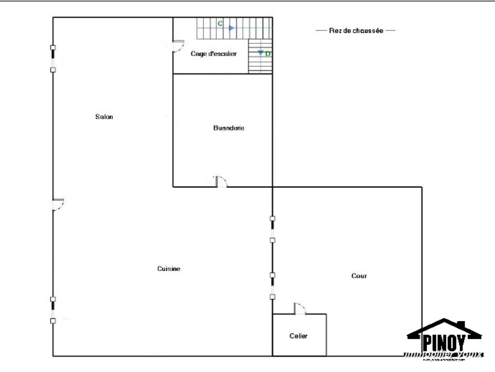
Située au coeur du village de Lorrez le Bocage, cette maison parfaitement entretenue offre 4 chambres, une grande cuisine à vivre avec salle à manger et un salon cosy, une belle cour aménagée avec soin idéalement pour profiter de l'extérieur en toute tranquillité et sécurité. Au rez de chaussée : Cuisine spacieuse aménagée et équipée, salon, cellier et buanderie. Au 1er étage : Palier desservant 2 chambres, salle d'eau. Au 2ème étage : 2 autres chambres. Cave. La cour est agréable et sans vis à vis. À Lorrez le Bocage, vous profitez de toutes les commodités (boulangerie, pharmacie, café, supermarché, écoles et collège. Accès rapide à Nemours et Montereau. L'agence Pinoy immobilier, 33 Grande rue - 77940 vous accompagne à chaque étape de votre projet immobilier depuis 1978. Contactez-nous au 01.64.70.71.65.
Les informations sur les risques auxquels ce bien est exposé sont disponibles sur le site Géorisques
