Description de l'offre
Au cœur du village fleuri de Flagy, dans le cadre préservé et recherché de la vallée de l’Orvanne, découvrez cette charmante maison ancienne pleine de caractère, offrant de beaux volumes et un agréable jardin clos de murs à l’abri des regards.
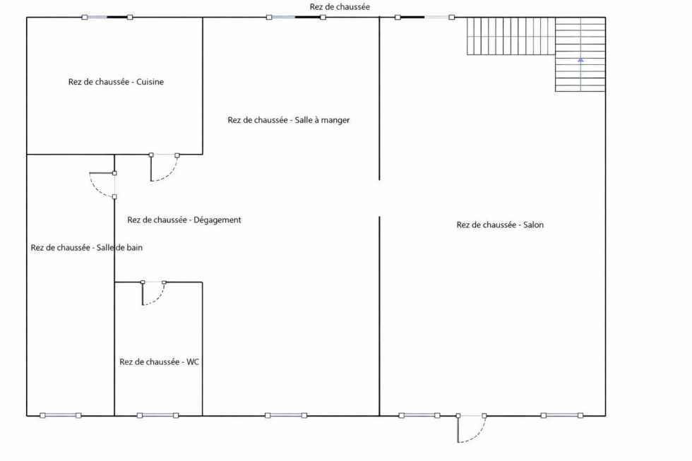
La maison dispose au rez-de-chaussée d'une spacieuse pièce de vie avec cheminée insert, d'une salle à manger, d'une cuisine aménagée et équipée (lave-vaisselle, réfrigérateur combiné, plaque de cuisson 5 feux gaz), salle de bains.
À un palier dessert trois grandes chambres de 20 m², 14,26 m² et 23 m², dont une avec dressing, ainsi qu’une seconde salle de bains.
À l’extérieur, le jardin clos de murs offre un cadre intimiste et verdoyant.
La maison dispose également de belles dépendances, très recherchées dans le secteur :
une très belle grange de 84 m² avec sol béton, idéale pour garage, stockage ou projet d’aménagement,
une double cave voûtée sur la totalité
Puits et petites dépendances pouvant servir d’atelier, de chenil ou d’espace de rangement.
Un ensemble plein de charme dans un environnement calme et authentique. L'agence Pinoy immobilier vous accompagne à chaque étape de votre projet immobilier.
Les informations sur les risques auxquels ce bien est exposé sont disponibles sur le site Géorisques
