Espace propriétaire
fr
Se connecter
Se connecter

Votre recherche

Exclusivité
Blennes (77940)

5 pièces - 126,70 m²

Maison familiale avec studio - Blennes

199 000 €
Ref : pv4029
WhatsApp
A propos de ce bien

Au cœur du charmant village de Blennes, dans la vallée de l’Orvanne, découvrez cette maison offrant un cadre de vie agréable et de belles possibilités d’aménagement.

De plain pied : Elle se compose d’une entrée, d’un salon spacieux prolongé par une véranda, d’une cuisine aménagée et équipée (hotte, plaque gaz, four), d’un dégagement, de trois chambres, d’une salle d’eau, de WC indépendants ainsi que d’un espace bien-être avec cabine de sauna.

Atout supplémentaire : une dépendance attenante avec accès indépendant comprenant une chambre, une salle de bains, WC et une entrée, idéale pour recevoir, loger un proche ou envisager un espace travail.

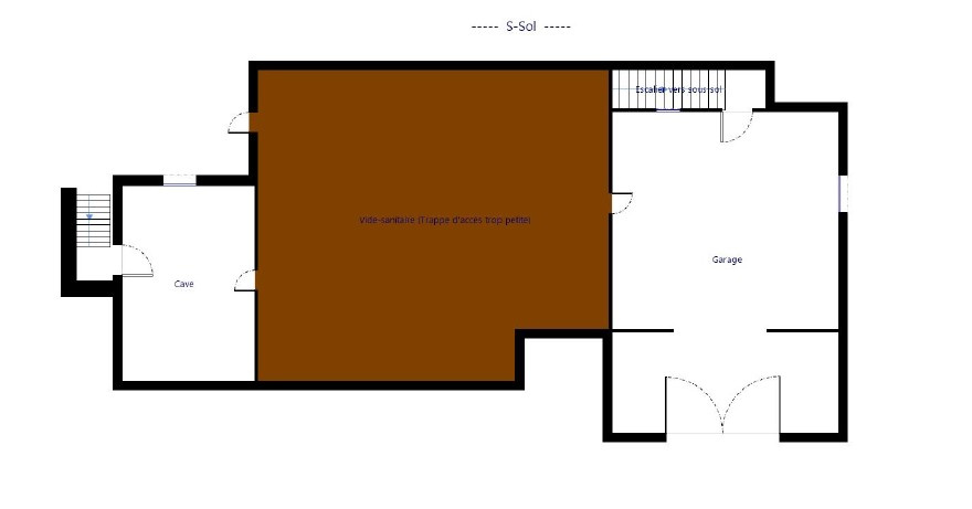
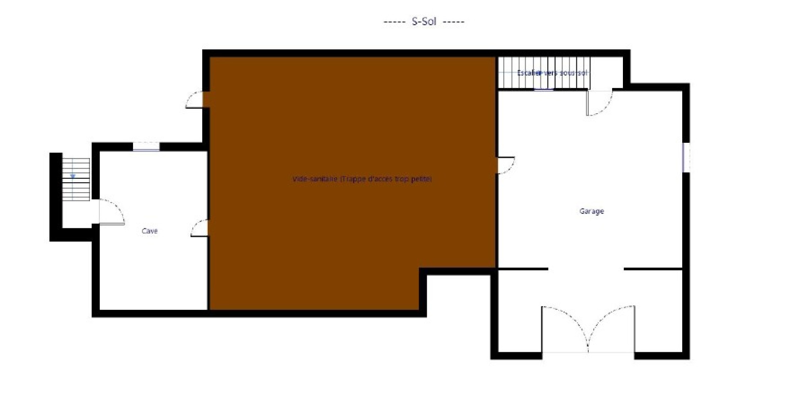
Le bien dispose également d’un vide sanitaire, d’une cave et d’un garage.

À l’extérieur, vous profiterez d’un jardin d’environ 790 m² avec abri, parfait pour les moments en famille ou entre amis.

Un ensemble fonctionnel dans un environnement paisible et recherché. L'agence Pinoy immobilier, 33 Grande rue - 77940 VOULX vous accompagne à chaque étape de votre projet.


Les informations sur les risques auxquels ce bien est exposé sont disponibles sur le site Géorisques
Descriptif de ce bien
Général
Code postal 77940
surface terrain 790 m²
Nombre de chambre(s) 4
Nombre de pièces 5
Nombre de niveaux 1
Détails
Nb de salle de bains 1
Nb de salle d'eau 1
Cuisine Séparée
Mode de chauffage Pompe à chaleur, Granules
Type de chauffage Air pulsé, Poêle
Format de chauffage Individuel, Individuel
Terrasse OUI
Nombre de garage 1
Cave OUI
Composition
Rez de chaussée
entrée

cuisine

salon/sejour

chambre

chambre

salle d'eau

Dégagement

Studio

entrée 7.70 m²

salon/sejour 41.56 m²

cuisine 8.60 m²

Dégagement 10.12 m²

chambre 10 m²

chambre 9.50 m²

chambre 15.50 m²

salle d'eau 8.15 m²

Studio 14 m²

abri de jardin

chambre

Etage -1
garage

cave

garage

cave

Financier
Prix de vente 199 000 €
Les honoraires d'agence seront intégralement à la charge du vendeur  
Taxe foncière annuelle 797 €
Energie
DPE GES
Copropriété
Copropriété NON
Autour du bien
  • Commerces et santé
  • Loisirs
  • Ecoles
  • Transports
  • Pratique
Contacter pour ce bien
L'agence
Téléphone 01 64 70 71 65
Adresse
33 Grande Rue 77940 Voulx

* Champ obligatoire

Les informations recueillies sur ce formulaire sont enregistrées dans un fichier informatisé par La Boite Immo agissant comme Sous-traitant du traitement pour la gestion de la clientèle/prospects de l'Agence / du Réseau qui reste Responsable du Traitement de vos Données personnelles. La base légale du traitement repose sur l'intérêt légitime de l'Agence / du Réseau. Elles sont conservées jusqu'à demande de suppression et sont destinées à l'Agence / au Réseau. Conformément à la loi « informatique et libertés », vous disposez des droits d’accès, de rectification, d’effacement, d’opposition, de limitation et de portabilité de vos données. Vous pouvez retirer votre consentement à tout moment en contactant directement l’Agence / Le Réseau. Consultez le site https://cnil.fr/fr pour plus d’informations sur vos droits. Si vous estimez, après avoir contacté l'Agence / le Réseau, que vos droits « Informatique et Libertés » ne sont pas respectés, vous pouvez adresser une réclamation à la CNIL. Nous vous informons de l’existence de la liste d'opposition au démarchage téléphonique « Bloctel », sur laquelle vous pouvez vous inscrire ici : https://www.bloctel.gouv.fr Dans le cadre de la protection des Données personnelles, nous vous invitons à ne pas inscrire de Données sensibles dans le champ de saisie libre.
Ce site est protégé par reCAPTCHA, les Politiques de Confidentialité et les Conditions d'Utilisation de Google s'appliquent.

Découvrir nos outils